Stenmästaren

Hornsgatan 4, 736 31 Kungsör

Ditt nya hem, mitt i centrala Kungsör

Välkommen till denna unika fastighet i hjärtat av Kungsör, byggd med både människa och miljö i åtanke.

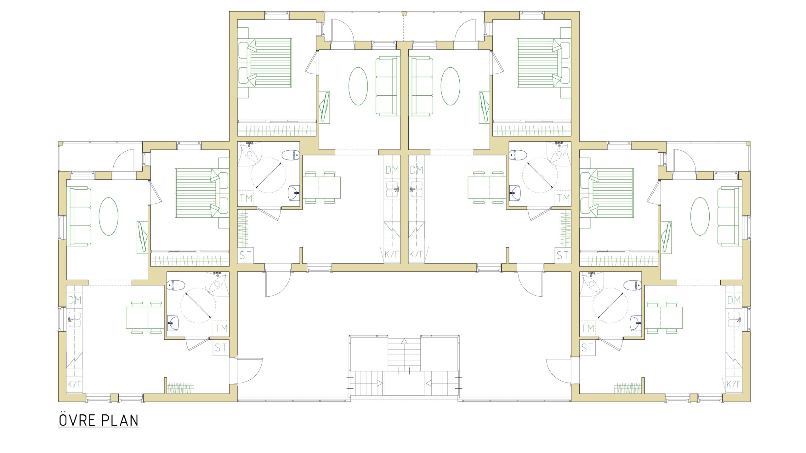
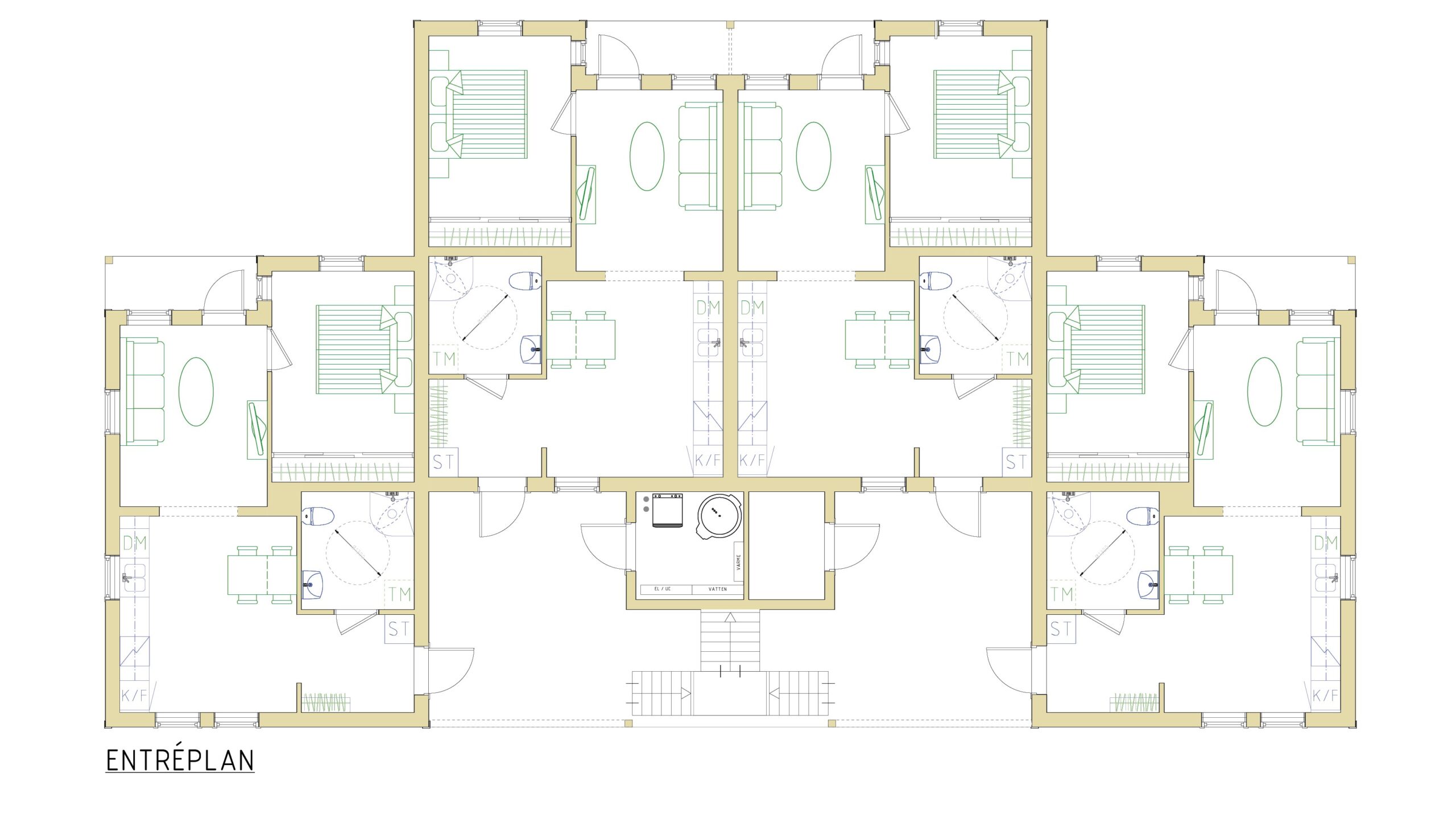
Fastigheten, som består av åtta moderna och välplanerade hyreslägenheter med egen ingång, är skapad för att ge hyresgästerna känslan av att bo i sitt eget hus.

Lägenheterna erbjuder privat uteplats eller balkong, där du kan börja morgonen med en kopp kaffe eller avsluta dagen med en vacker solnedgång.

______

Byggstart: Augusti 2024
Planerad inflytt: Juni 2025
Antal lgh: 8 st
Upplåtelseform: Hyrerätter

Bostadskö

Vill du ställa dig i vår bostadskö eller har du andra frågor?